image/svg+xml Arbor Vista ® A LAKESHORE COMMUNITY

An Affordable Manufactured Home Community in Burnsville, Minnesota

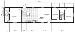
Custom Homes

planC

Bookmark the permalink.

© 2022 Lakeshore Communities. All rights reserved.